
Maintenance, Electricity, Heat, Common Area Maintenance, Water, Parking
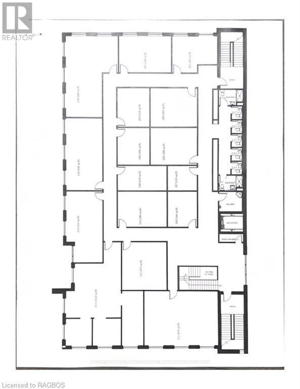
$125 MonthlyAre you in search of a new location for your office? Consider Condominium Office Ownership for a flexible and budget-friendly solution. Check out the newly available office spaces at Powerlink in Saugeen Shores!\r\n\r\nUnit 117, situated on the ground floor, offers 152 sq. ft. and a large window that brings in plenty of natural light. Powerlink is Port Elgin’s cutting-edge workspace, designed with modern finishes and secure access both during and after business hours. With low operating costs and networking opportunities in the common business center on the first floor, it’s the perfect environment for growth.\r\n\r\nThe efficient floor plans and additional amenities allow you to access boardroom space and a centralized reception area and even a owners/tenant lounge featuring a cafe on the third floor. Interested in investing? This unit is currently tenanted. \r\n\r\nDon’t miss this chance to secure a prime location in Bruce County with excellent highway visibility. Located in Saugeen Shores, close to Bruce Power and the Southwestern Ontario region, Powerlink represents the new standard in office spaces. Schedule your viewing today!\r\nPowerlink also offers other lease and purchase options, inquire within. (id:46421)
| MLS® Number | X10845997 |
| Property Type | Retail |
| Features | Elevator |
| Parking Space Total | 47 |
| Amenities | Security/concierge |
| Basement Type | Full |
| Foundation Type | Poured Concrete |
| Size Interior | 152 Ft2 |
| Utility Water | Municipal Water |
| Acreage | No |
| Sewer | Sanitary Sewer |
| Zoning Description | Hc-28 |
https://www.realtor.ca/real-estate/27474244/117-1020-goderich-street-saugeen-shores
Contact us for more information