18 Francis Street E Fenelon Falls, Ontario K0M 1N0

964 ft2

$2,000 MonthlyHeat, Electricity, Water

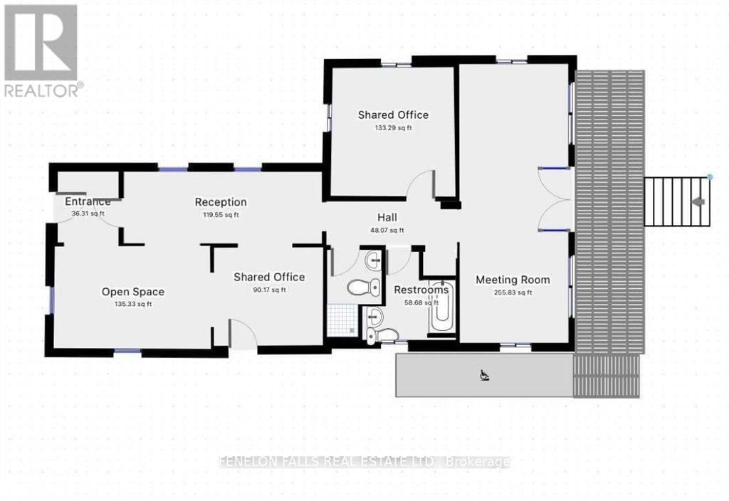
Just steps from the vibrant main street of Fenelon Falls, this commercial property offers a fantastic opportunity for a variety of uses, including professional offices, retail, a cafe/bakery, and more. Let your imagination run wild with endless possibilities.The building has undergone extensive updates since 2013, including new windows, a metal roof, re-insulated exterior walls, updated plumbing, electrical, drywall, flooring, and custom wood trim and doors.This 964-square-foot space features an open, bright layout and includes two bathrooms (a 2-piece and a 4-piece), as well as two separate entrances. One of the entrances is fully accessible, with a ramp leading to a large covered porch that overlooks the falls.With plenty of public parking and just steps from the heart of Fenelon Falls, this location offers excellent visibility and foot traffic. Rent includes utilities, providing peace of mind when it comes to budgeting. (id:46421)

Property Details

MLS® Number 40683841
Property Type Retail
Community Features High Traffic Area

Building

Basement Type None
Stories Total 2
Size Exterior 964.0000
Size Interior 964 Ft2
Utility Water Municipal Water

Land

Access Type Road Access
Acreage No
Sewer Municipal Sewage System
Size Depth 163 Ft
Size Frontage 68 Ft
Size Total Text Under 1/2 Acre
Zoning Description C1

https://www.realtor.ca/real-estate/27719127/18-francis-street-e-fenelon-falls

Contact Us

Contact us for more information


Generating Captcha

Your Favourites

 

No Favourites Found