
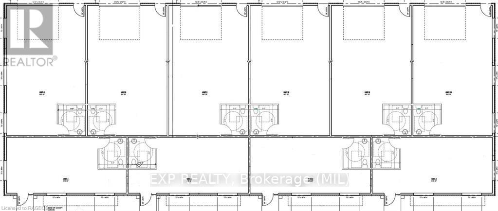
Built to Suit! Available for lease in Walkerton is a new state-of-the-art industrial space offering up to 8,000 square feet. This premium building is fully customizable, designed to meet your specific needs. Whether you require a workshop, office space, industrial or a warehouse with 14 feet of clear ceiling height and 12ft shipping doors, this property will be tailored just for you. With flexibility in construction, the building can be adapted to fit your vision. Zoning allows for multiple uses, and you’ll be in great company with neighboring properties like the regional soccer park, future residential developments, Best Western, Luxury Woodworking, Balaklava Audio, and more. (id:46421)
| MLS® Number | X10846151 |
| Property Type | Retail |
| Exterior Finish | Brick, Steel |
| Foundation Type | Slab |
| Size Interior | 8,000 Ft2 |
| Utility Water | Municipal Water |
| Access Type | Year-round Access |
| Acreage | No |
| Sewer | Sanitary Sewer |
| Size Irregular | Unit=368.83 X 472.44 Acre |
| Size Total Text | Unit=368.83 X 472.44 Acre |
| Zoning Description | Bp2 (business Park 2) |
https://www.realtor.ca/real-estate/27326573/32-34-creighton-road-brockton
Contact us for more information